中古一戸建て 姫路市網干区津市場

  • #中古一戸建て
  • #姫路市網干区津市場
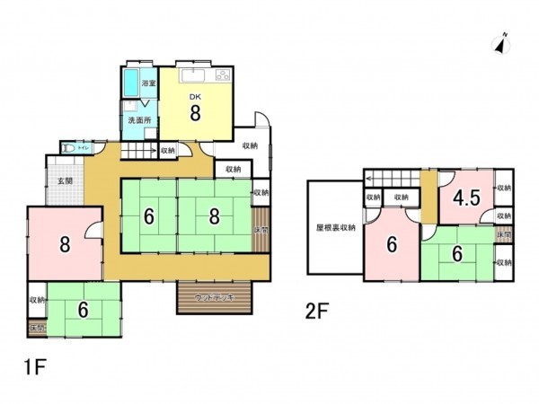
  • 姫路市網干区津市場、中古一戸建ての間取り画像です

    【間取り】

    レインズから引用

    所在地
    姫路市網干区津市場
    985万円
    53.30坪 7SDK

    旭陽小学校まで徒歩10分

    ・「ヤマダストアー 網干店」まで610m(徒歩8分)
    ・「ローソン 姫路網干津市場店」まで390m(徒歩5分)
    ・「ドラッグストア マツモトキヨシ 網干店」まで590m(徒歩8分)
    ・「キリン堂 姫路網干店」まで830m(徒歩11分)

    ローンシミュレーション

    弊社がおすすめするリフォームプランを追加した場合のローンシミュレーションも可能です!

    ※住宅ローンの借り入れ条件については、審査の結果によって異なります。
    詳しくは店頭にてご相談ください。

    ※リフォーム金額は一例です。物件によって異なりますので、詳しくはお問い合わせください。

    物件概要

    交通

    バス停宮内 まで 徒歩11分

    接道状況
    西側 公道2.2m 間口約25.5m
    北側2.1m 間口約16m
    土地面積
    公簿 398.18㎡ (120.44坪)
    建物面積
    176.21㎡ (53.30坪)
    築年数
    1974年 (昭和49) 12月
    築51年
    建ぺい率
    60%
    容積率
    150%
    土地権利
    所有権
    構造および階数
    木造 地上2階建
    小学校区
    旭陽 ( 800m )
    中学校区
    朝日 ( 1300m )
    私道負担
    地目
    宅地
    現況
    引渡時期
    相談
    駐車場
    上水道
    公共
    下水道
    公共
    ガス
    プロパン個別
    都市計画
    市街化区域
    用途地域
    1種中高
    設備・条件
    駐車場3台分
    備考
    ・西側:第42条1項1号 北側:第43条2項になりうる空地
    ・0.5m~3.0mの浸水が予想される区域
    ・0.5m~3.0mの高潮が予想される区域
    ・契約不適合責任免責
    ・別途敷地内に2階建の置物あり
    取引態様
    仲介
    周辺地図を確認する

    (弊社管理番号: 29901)

    【更新日】2026年03月16日

    【次回更新日】2026年05月16日

    その他周辺物件

    最近チェックした物件

    会社紹介 Company

    姫路市専門の不動産仲介

    HPを見たと言って
    お気軽にお問い合わせください

    無料相談・お電話窓口

    0120-007-092
    営業時間:9:00〜19:00 定休日:火・水曜日